132 S. Main Street

« Back to Search Results

132 S. Main Street, Woodruff, SC 29388

Historic Main Street Retail or Mixed Use Investment Opportunity

Property Type

Mixed Use, Retail

Status

For Lease, For Sale

Sale Price

$695,500

Lease Rate

$15/SF NNN

Square Feet

+/- 3,640 Square Feet

Zoning

Commercial

County

Spartanburg

Tax Map

4-32-03-087.00

Contact Broker

Property Features

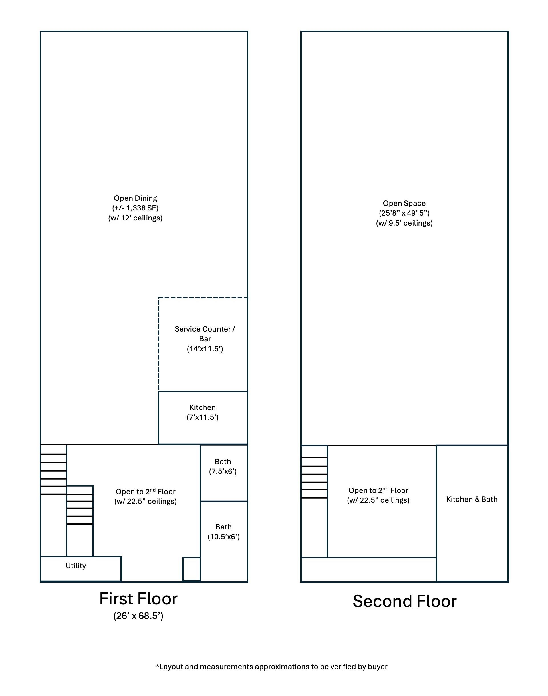
  • Located in the heart of downtown Woodruff on Main Street, this two-story historic retail space has been fully renovated into a restaurant space with prep kitchen and an open concept living/event space upstairs.
  • Prime S. Main road frontage with 14,300 daily traffic count and walking traffic
  • Fully renovated with new electric, plumbing, and HVAC across two floors
  • Includes prep kitchen with the ability to expand
  • Dedicated parking and city parking in rear
  • Great investment opportunity in the high-growth market of Woodruff, SC with opportunity to use as a live-work concept. According to the Upstate Business Journal, “up to 4,000 new homes are expected to be built in the next five years” in Woodruff, SC (including planned and under construction developments).

Property Documents

132 S Main Street Woodruff

Sign Up

"*" indicates required fields

Name*